Prodej bytů Ježov - O projektu:
Připravili jsme pro vás nový projekt moderního bydlení v Ježově. Jedná se o bytový dům na místě bývalého Vávrova mlýna. Podrobné informace o prodeji bytů tohoto projektu najdete vždy na těchto stránkách.
Vizualizace:
Nabídka bytů:
Vávrův mlýn
← Vyberte patro
Suterén
Přízemí
Patro
Podkroví
Byt č.1

Byt č.2

Byt č.3

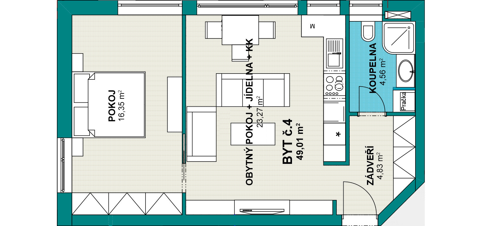
Byt č.4

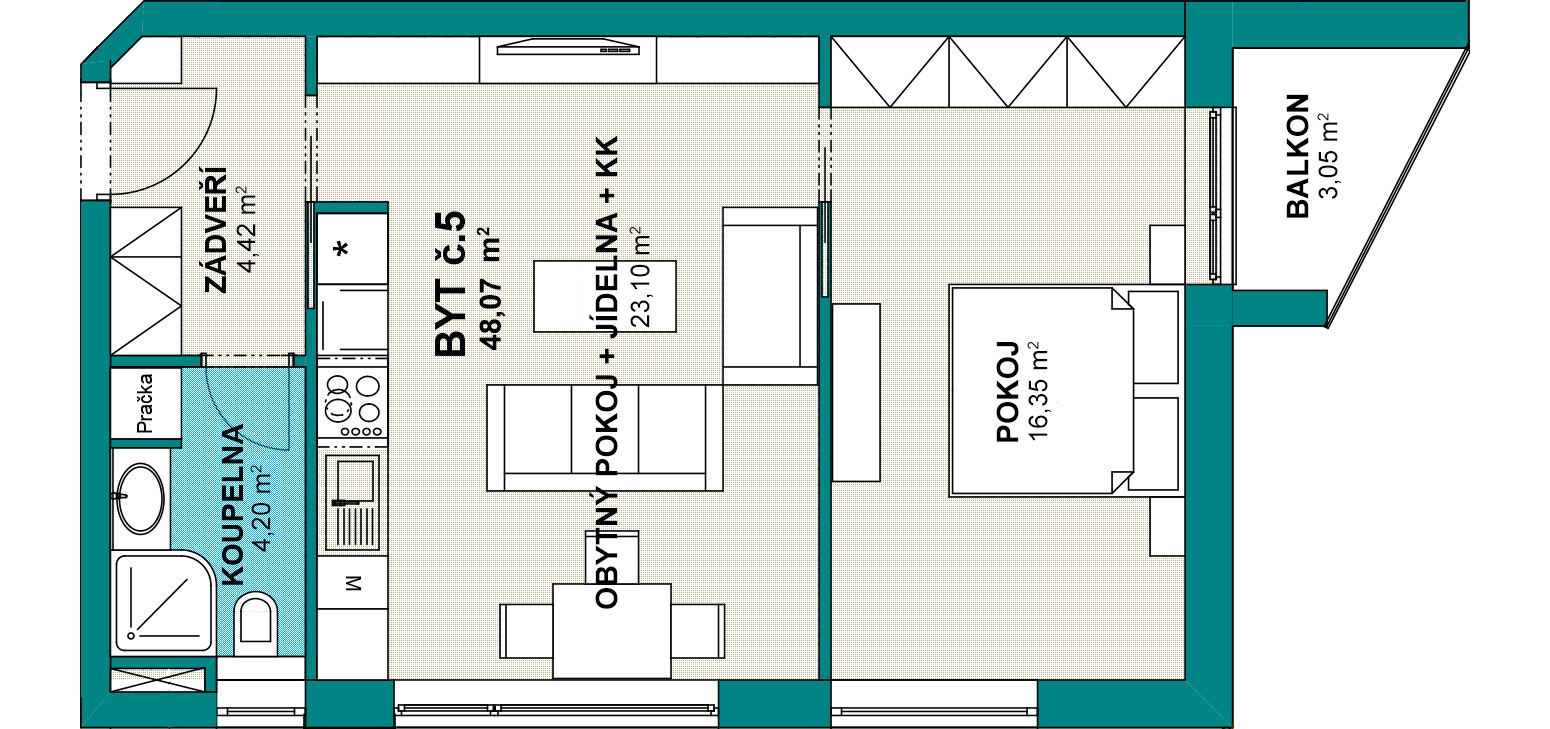
Byt č.5

Byt č.6

Byt č.7

Byt č.8

Byt č.9

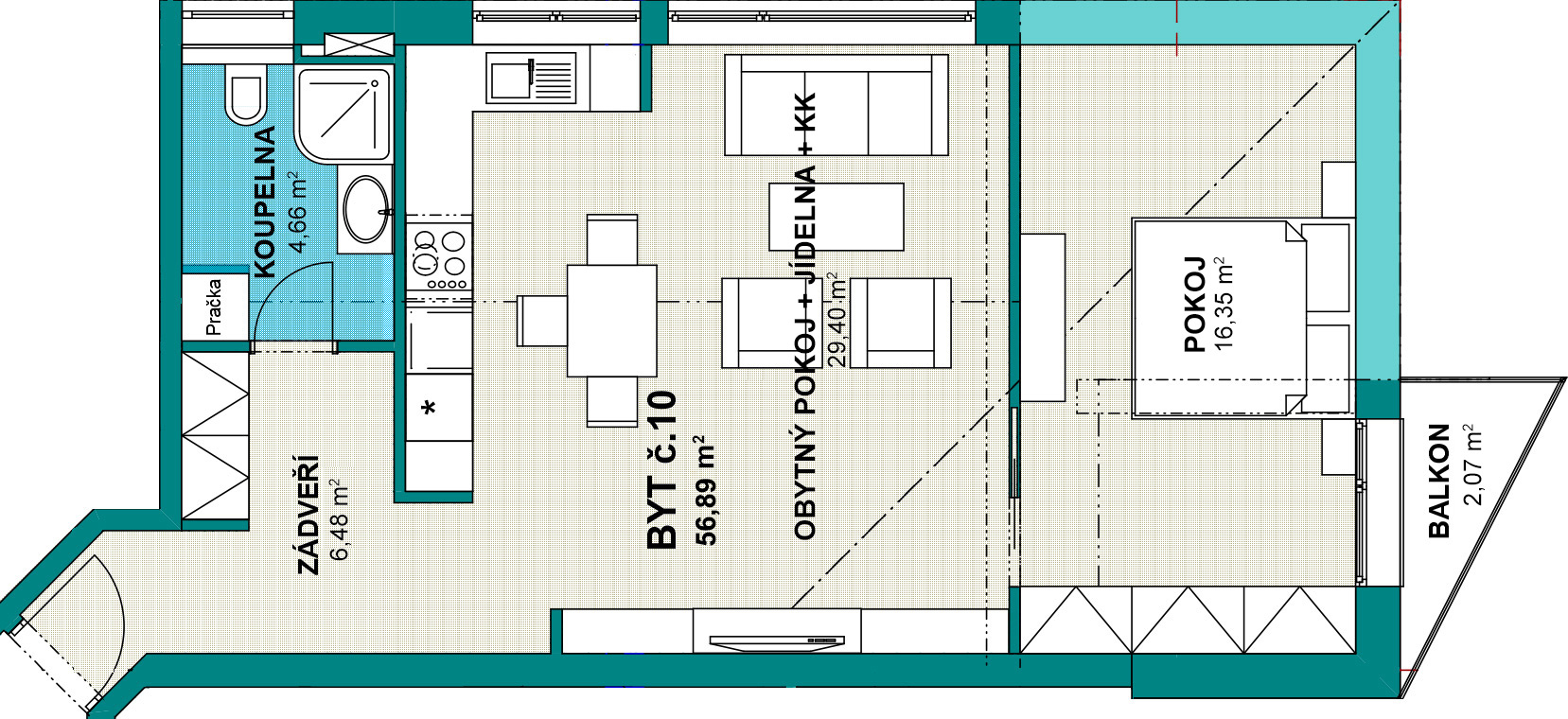
Byt č.10

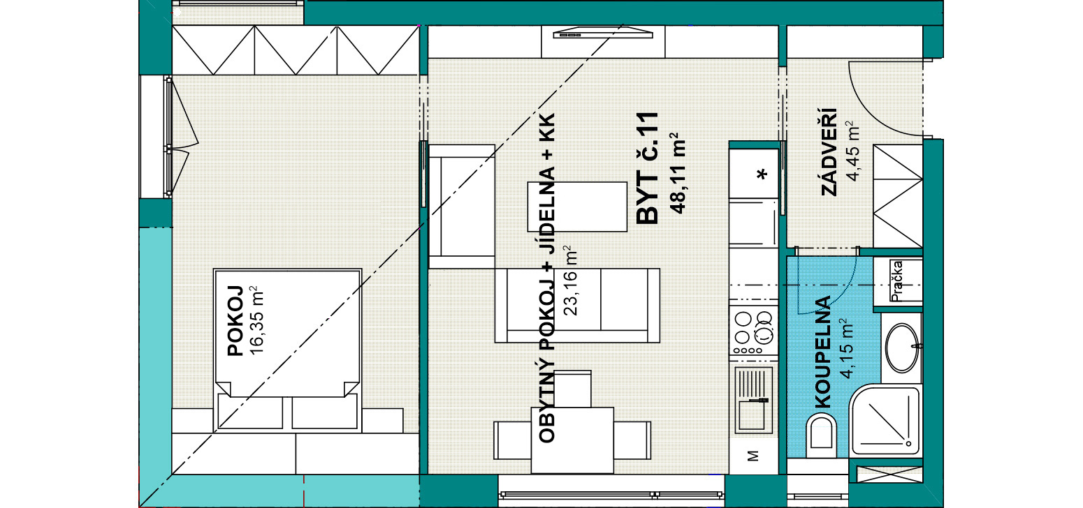
Byt č.11

Byt č.12

| Číslo bytu | Patro | Dispozice | Balkón | Plocha | Sklep | Orientace | Cena vč. DPH | Stav |
|---|---|---|---|---|---|---|---|---|
| Byt č.01 | přízemí | 2+KK | 3,05 m2 | 47,63 m2 | 12,00 m2 (č.21) | SZ | na dotaz | rezervace |
| Byt č.02 | přízemí | 2+KK | ne | 49,46 m2 | 10,90 m2 (č.20) | JV | na dotaz | volný |
| Byt č.03 | přízemí | 2+KK | ne | 48,05 m2 | 8,60 m2 (č.14) | SZ | na dotaz | volný |
| Byt č.04 | přízemí | 2+KK | ne | 49,01 m2 | 8,90 m2 (č.16) | JV | na dotaz | volný |
| Byt č.05 | patro | 2+KK | 3,05 m2 | 48,07 m2 | 12,13 m2 (č.23) | SZ | na dotaz | volný |
| Byt č.06 | patro | 2+KK | 2,07 m2 | 56,89 m2 | 16,89 m2 (č.17) | JV | na dotaz | rezervace |
| Byt č.07 | patro | 2+KK | ne | 48,11 m2 | 8,45 m2 (č.13) | SZ | na dotaz | volný |
| Byt č.08 | patro | 2+KK | 3,29 m2 | 54,02 m2 | 16,20 m2 (č.19) | JV | na dotaz | volný |
| Byt č.09 | podkroví | 2+KK | 3,05 m2 | 48,07 m2 | 12,13 m2 (č.22) | SZ | na dotaz | volný |
| Byt č.10 | podkroví | 2+KK | 2,07 m2 | 56,89 m2 | 16,35 m2 (č.18) | JV | na dotaz | volný |
| Byt č.11 | podkroví | 2+KK | ne | 48,11 m2 | 8,40 m2 (č.15) | SZ | na dotaz | volný |
| Byt č.12 | podkroví | 2+KK | 3,29 m2 | 54,02 m2 | 12,67 m2 (č.24) | JV | na dotaz | volný |
Ke každému bytu je v ceně parkovací stání.
Změny vyhrazeny.
Chci více informací o tomto projektu »
Lokalita:
Obec Ježov leží 7 km severovýchodně od Kyjova v nadmořské výšce 238 m a katastr obce zaujímá rozlohu 591 ha. Území obce je minimálně zalesněné. První zmínka o obci pochází už z roku 1320, kdy se píše o faráři Gerhardovi z Ježova. Kostel sv. Jakuba Staršího z let 1677–1681 je chráněnou kulturní památkou. K 1. 1. 2023 měla obec 700 obyvatel.
PŘÍRODA - Centrem obce protéká potok Hruškovice s vodní nádrží Horní Ježov a ve východní části Skalecký potok s nádrží Dolní Ježov. V katastru obce se rozkládá přírodní památka Losky, kterou tvoří odkrytý profil východní části opuštěného hliniště. Na území nad stěnou je bohatý výskyt ohrožené hvězdnice zlatovlásku. Příjemnou procházku si můžete udělat i k blízké přírodní památce Hošťálka, kde brzy na jaře rozkvétá v několika stovkách jedinců koniklec velkokvětý.
Ježov je součástí mikroregionu Podchřibí - nedaleké Chřiby se svými kopci, lesy, skalami, rozhlednami, zříceninami i hradem Buchlovem nabízí nepřeberné množství zážitků i pro náročné turisty.
VZDĚLÁNÍ - V obci najdete základní devítiletou i mateřskou školu, v nedalekém Kyjově je osmileté Klvaňovo gymnázium se střední zdravotnickou školou, Střední škola polytechnická a velké množství středních odborných škol.
ZDRAVOTNÍ PÉČE - přímo v obci jsou ordinace praktického a dětského lékaře, další odborné lékaře, polikliniku i péči nemocnice najdete opět v blízkém Kyjově.
VYBAVENOST - Ježov je sice malá obec, ale o své obyvatele se dokáže postarat vzorně. Kromě již zmíněné školy, školky či ordinací praktického i dětského lékaře, které nemají i některé větší obce, tady najdete poštu, knihovnu, hospodu a několik obchodů. Dospělí i děti se mohou zapojit do činnosti místních zájmových spolků (Český zahrádkářský svaz, Sbor dobrovolných hasičů, Myslivecký spolek VLAST, Ježovští pěvci, Ježovjánek, Skautský oddíl …) nebo sportovních oddílů (kopaná, stolní tenis, šachový kroužek).
SPORT - Ke sportovnímu vyžití pro děti i dospělé slouží fotbalové hřiště, dětské hřiště, školní tělocvična, školní hřiště a cyklostezky spojující vinařské oblasti Bzenecka a Kyjovska s blízkým pohořím Chřiby. Okolí nabízí krásné terény k procházkám nebo běhu. V zimním období určitě oceníte blízkost lyžařského svahu v Osvětimanech.
DOSTUPNOST - Obcí prochází státní silnice II/422 směr Kyjov - Uherské Hradiště a III/4225 směr Bzenec, Veselí nad Moravou. Autobusová obslužnost je zajištěna linkou 666 Kyjov - Vlkoš - Žeravice - Osvětimany.
Ježov Obec ↔ Úřad ↔ Aktuálně ↔ Organizace ↔ Fotogalerie ↔ Kontakt
Harmonogram:
Termín předání bytů je plánován na červen 2024.
Financování:
-
Rozložení platby kupní ceny bytové jednotky :
- 20% ceny do deseti dnů ode dne uzavření smlouvy o budoucí kupní smlouvě
- 20% ceny po dokončení hrubé stavby (tj. včetně střechy)
- 20% ceny po dokončení vnitřních omítek budovy
- 40% ceny do deseti dnů ode dne uzavření kupní smlouvy před podáním kupní smlouvy na katastr na zápis změny vlastníka
Nabízíme možnost úvěrování (splácení kupní ceny dle individuální dohody).


















































